Aucun produit
Les prix sont TTC
Bouchon pour obstruer un trou de cylindre en pvc, à clipser Bouchon pour...
Douille, à enficher dans diamètre de perçage Ø 7,5 mm En acier nickelé...
en matière composite, gris pour crochets 154, 154/1 et 154/2 empêche le...
17.020.000
Neuf
0 Article articles
Ce produit n'est plus en stock
Attention : dernières pièces disponibles !
Date de disponibilité:
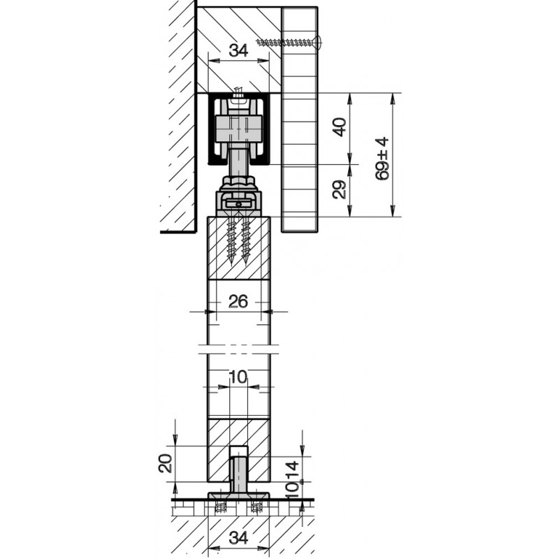
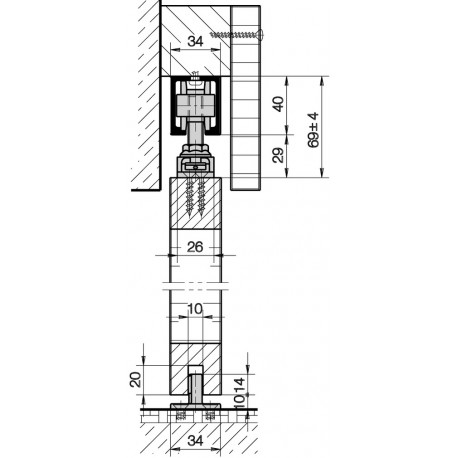
avec suspension à deux voies, pour montage au plafond, réglable en hauteur +/- 4 mm et réglage de côté +/- 2 mm, ajustage facile, chariots fonctionnement facile et silencieux

239.65 CHF

64.85 CHF

79.15 CHF

40.00 CHF

17.30 CHF

7.80 CHF

8.95 CHF